x
Home
Services
MEP Design Review & Oversight
Technical Peer Review & Code Alignment for MEP Firms
Full MEP, Fire, Energy & PV Design Services
T24
Architectural Drafting
Pricing
About Us
FAQ
Projects
MEP
Architectural Design
Blogs
Infographics
ARCHITECTS
DEVELOPERS
MEP
Contact Us
Get Quote
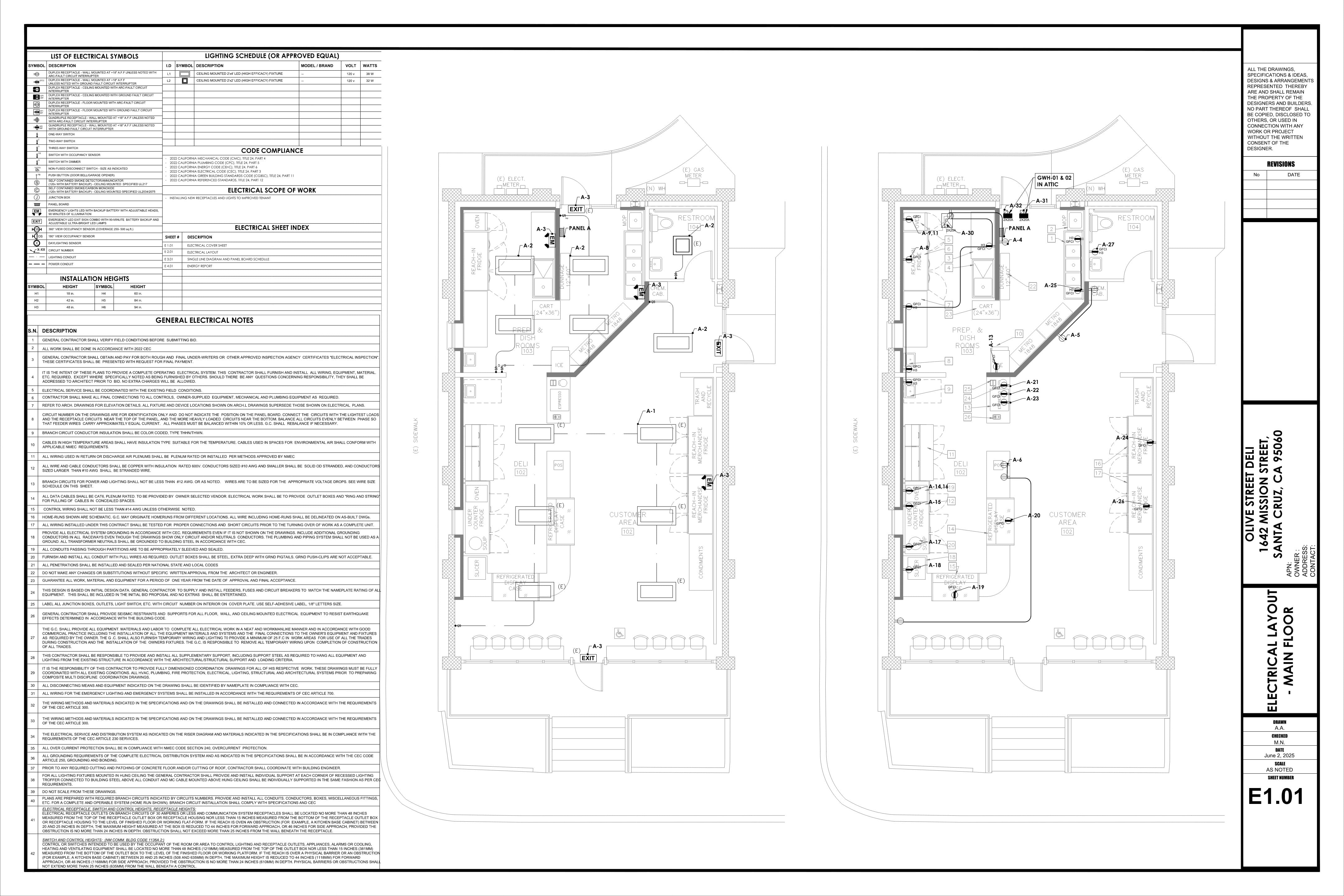
Olive st deli
Home
projects
Olive st deli
Project Name
Olive st deli
Project Type
Retail
Project Address
1642 Mission street, Santa Cruz CA 95060
Project Images