x
Home
Services
MEP Design Review & Oversight
Technical Peer Review & Code Alignment for MEP Firms
Full MEP, Fire, Energy & PV Design Services
T24
Architectural Drafting
Pricing
About Us
FAQ
Projects
MEP
Architectural Design
Blogs
Infographics
ARCHITECTS
DEVELOPERS
MEP
Contact Us
Get Quote
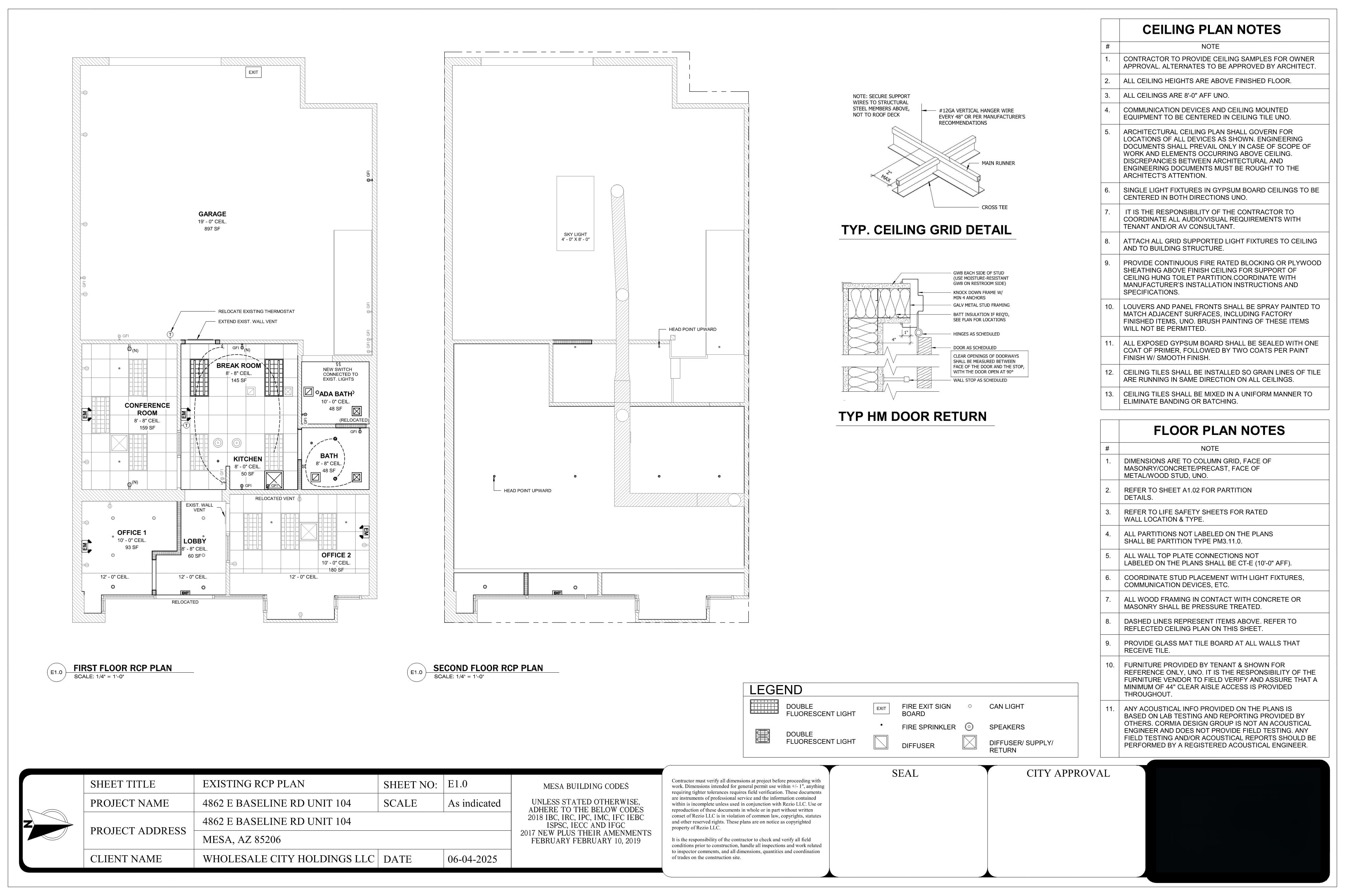
4862 E Baseline Rd Unit 104
Home
projects
4862 E Baseline Rd Unit 104
Project Name
4862 E Baseline Rd Unit 104
Project Type
Retail
4862 E BASELINE RD UNIT 104
223 ORIENT WY, RUTHERFORD, NJ 07070
Project Images