x
Home
Services
MEP Design Review & Oversight
Technical Peer Review & Code Alignment for MEP Firms
Full MEP, Fire, Energy & PV Design Services
T24
Architectural Drafting
Pricing
About Us
FAQ
Projects
MEP
Architectural Design
Blogs
Infographics
ARCHITECTS
DEVELOPERS
MEP
Contact Us
Get Quote
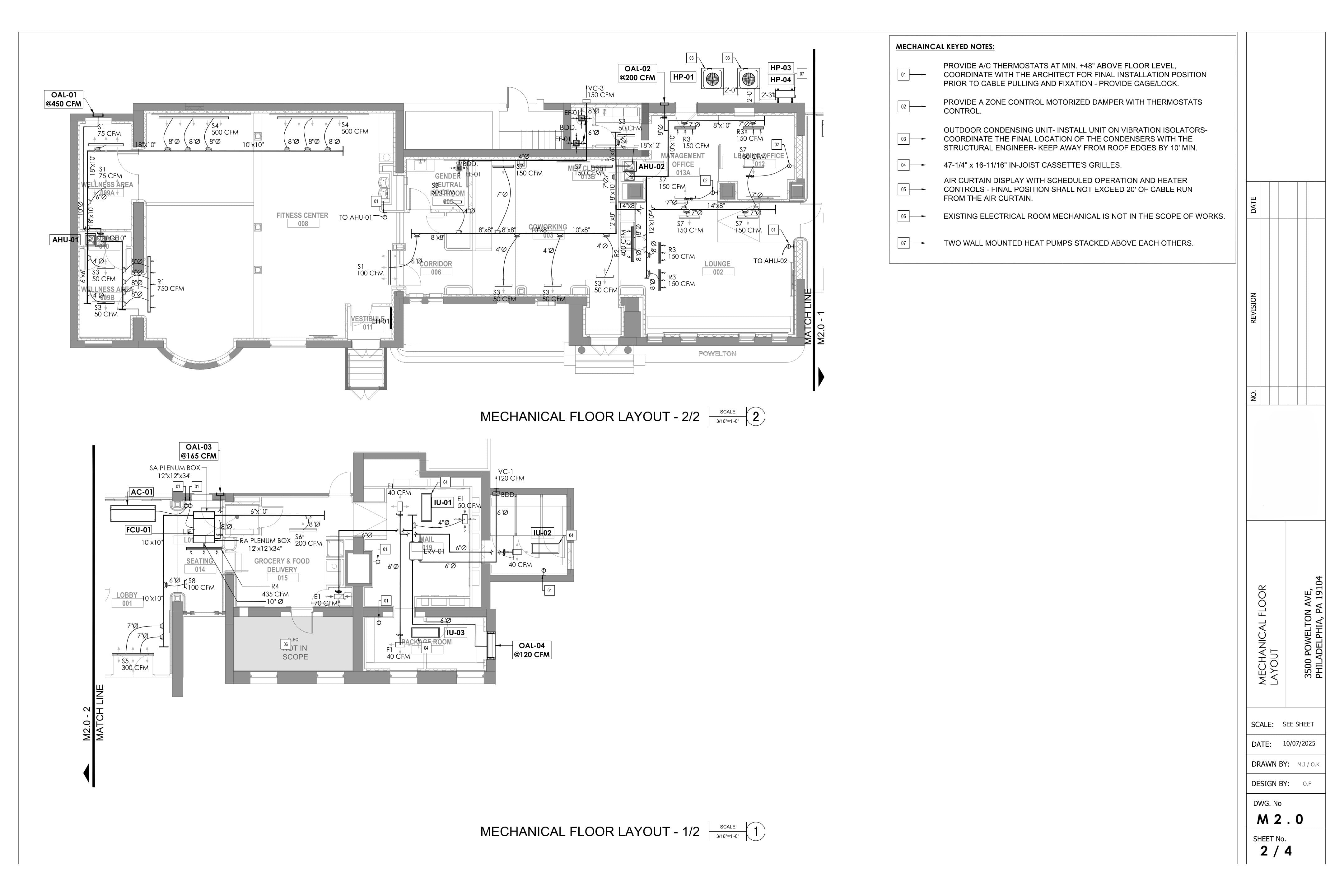
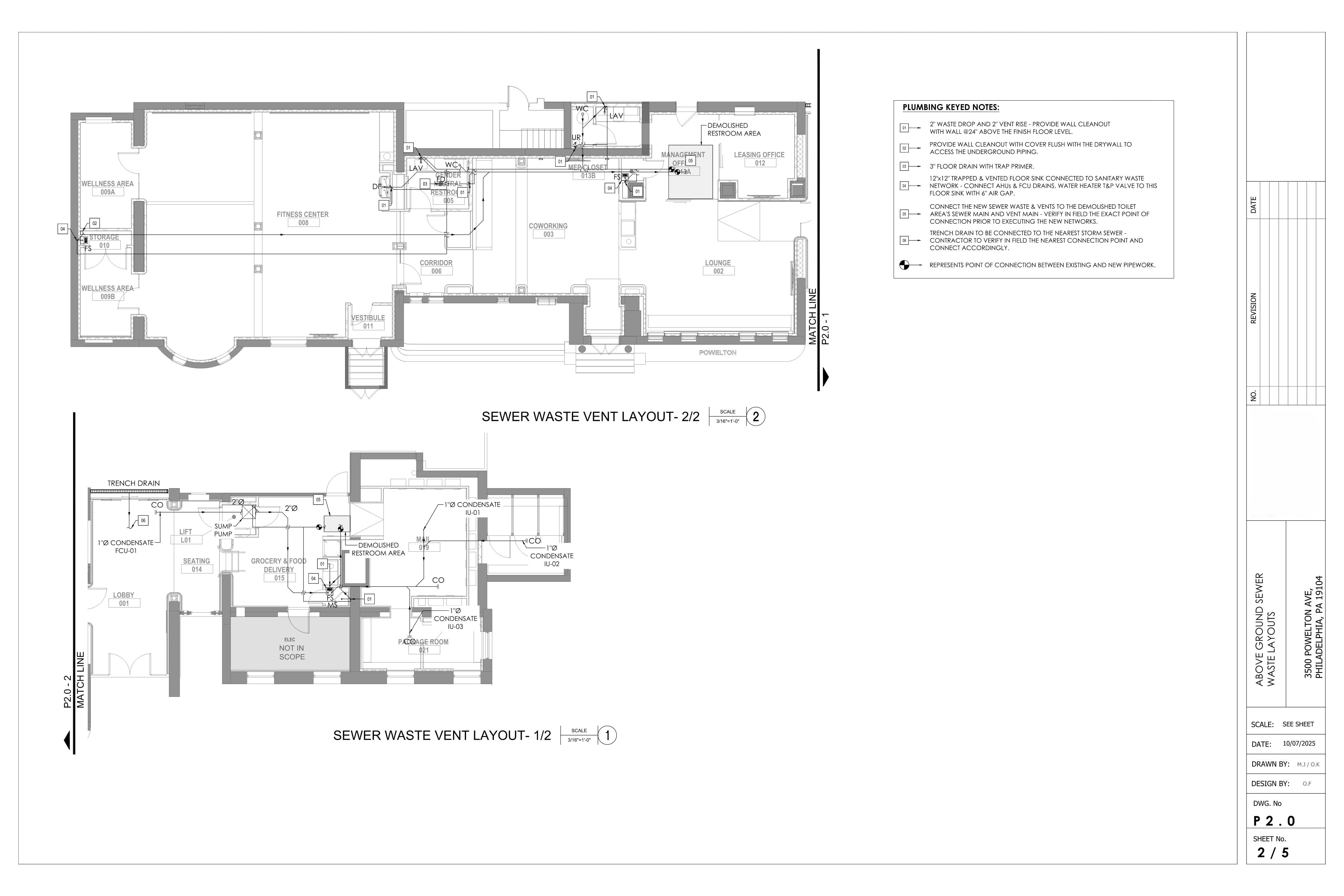
Project 55
Home
projects
Project 55
Project Name
Project 55
Project Type
Residential
Project Address
3500 POWELTON AVE, PHILADELPHIA, PA 19104
Project Images