x
Home
Services
MEP Design Review & Oversight
Technical Peer Review & Code Alignment for MEP Firms
Full MEP, Fire, Energy & PV Design Services
T24
Architectural Drafting
Pricing
About Us
FAQ
Projects
MEP
Architectural Design
Blogs
Infographics
ARCHITECTS
DEVELOPERS
MEP
Contact Us
Get Quote
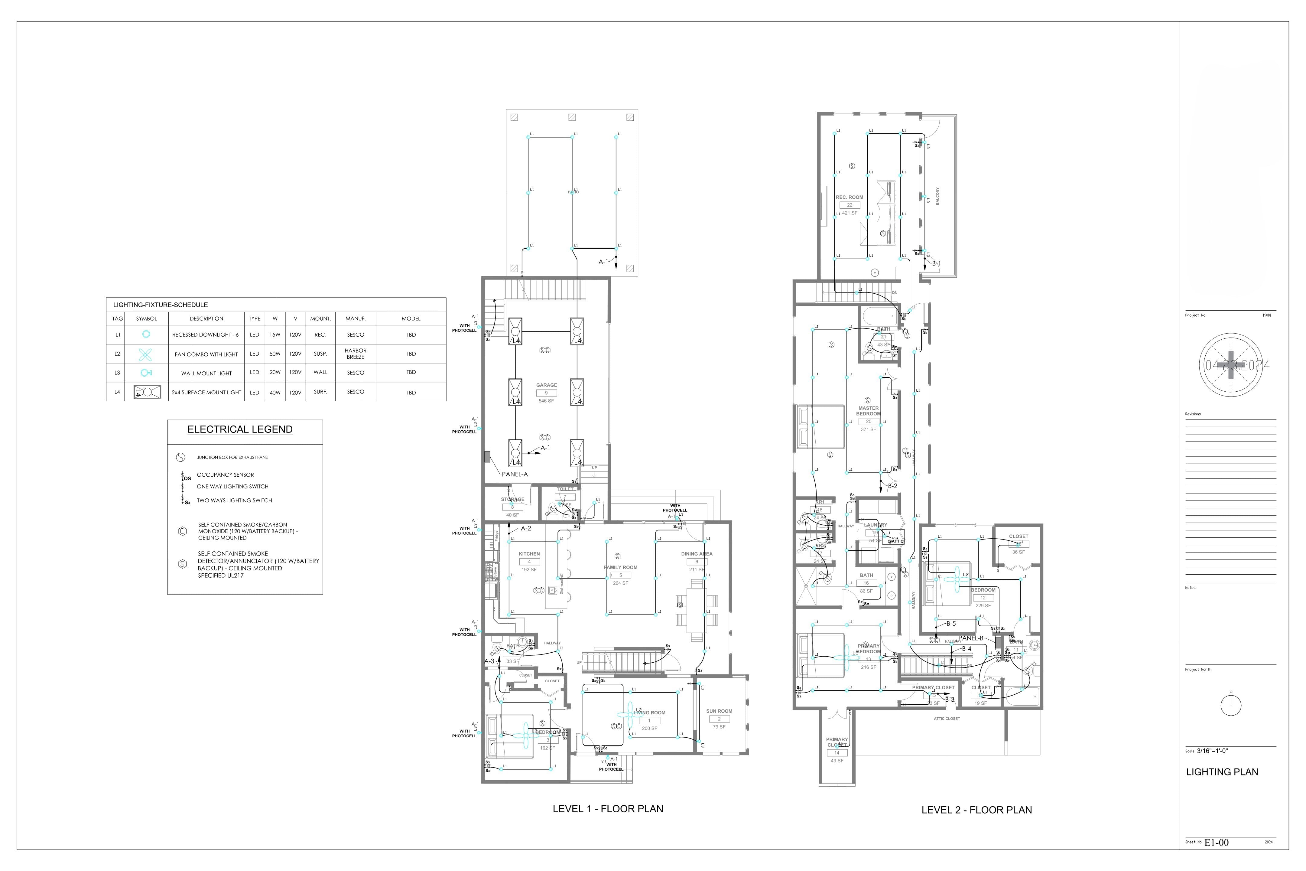
1475 frazier
Home
projects
1475 frazier
Project Name
1475 frazier
Project Type
Residential
Project Address
1475 Frazier Rd Decatur GA 30033
Project Images