x
Home
Services
MEP Design Review & Oversight
Technical Peer Review & Code Alignment for MEP Firms
Full MEP, Fire, Energy & PV Design Services
T24
Architectural Drafting
Pricing
About Us
FAQ
Projects
MEP
Architectural Design
Blogs
Infographics
ARCHITECTS
DEVELOPERS
MEP
Contact Us
Get Quote
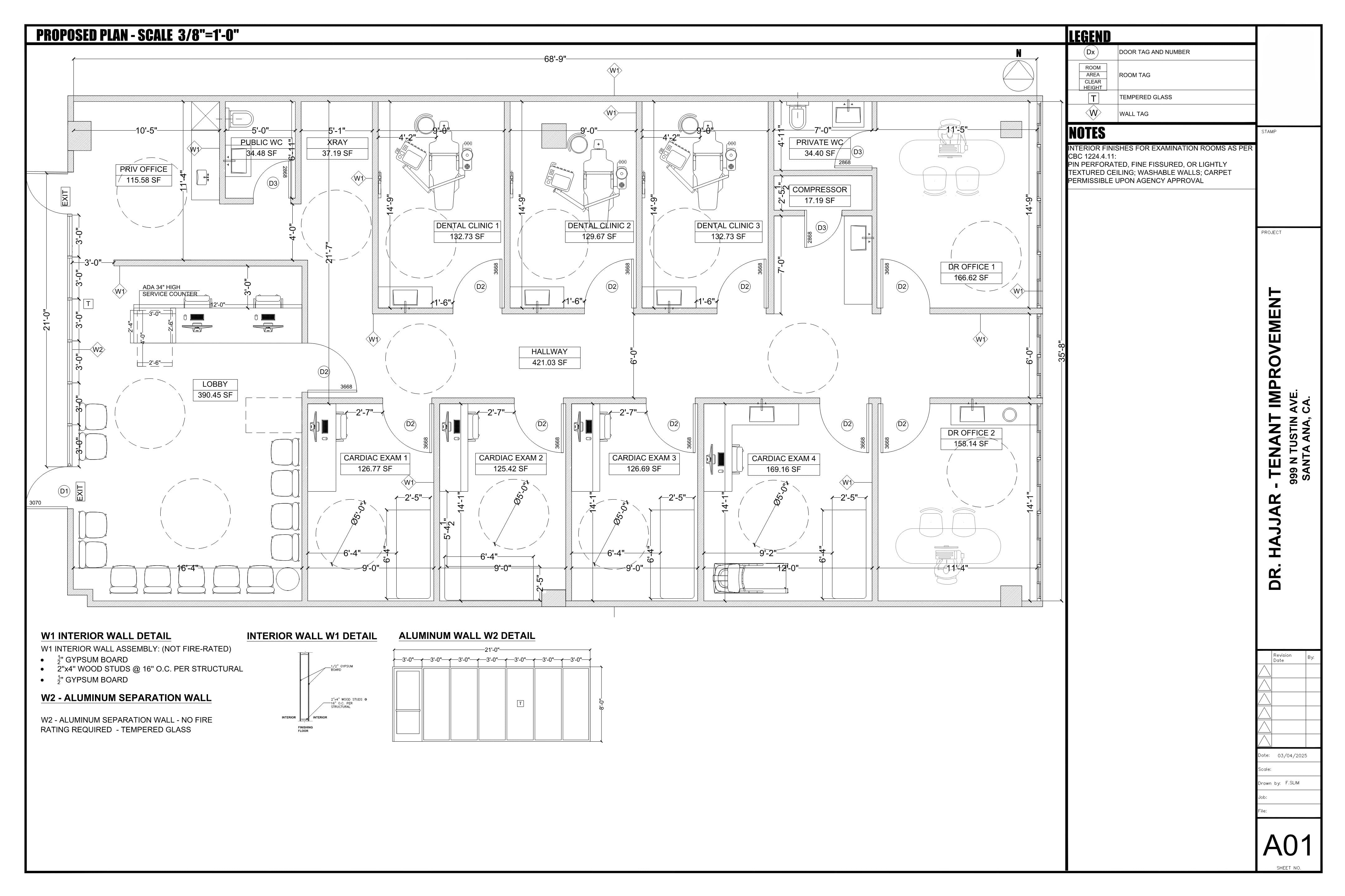
Dr hajjar tenant improvement
Home
projects
Dr hajjar tenant improvement
Project Name
Dr hajjar tenant improvement
Project Type
Architectural Design
Project Address
999 N TUSTIN AVE, SANTA ANA, CA
Project Images