x
Home
Services
MEP Design Review & Oversight
Technical Peer Review & Code Alignment for MEP Firms
Full MEP, Fire, Energy & PV Design Services
T24
Architectural Drafting
Pricing
About Us
FAQ
Projects
MEP
Architectural Design
Blogs
Infographics
ARCHITECTS
DEVELOPERS
MEP
Contact Us
Get Quote
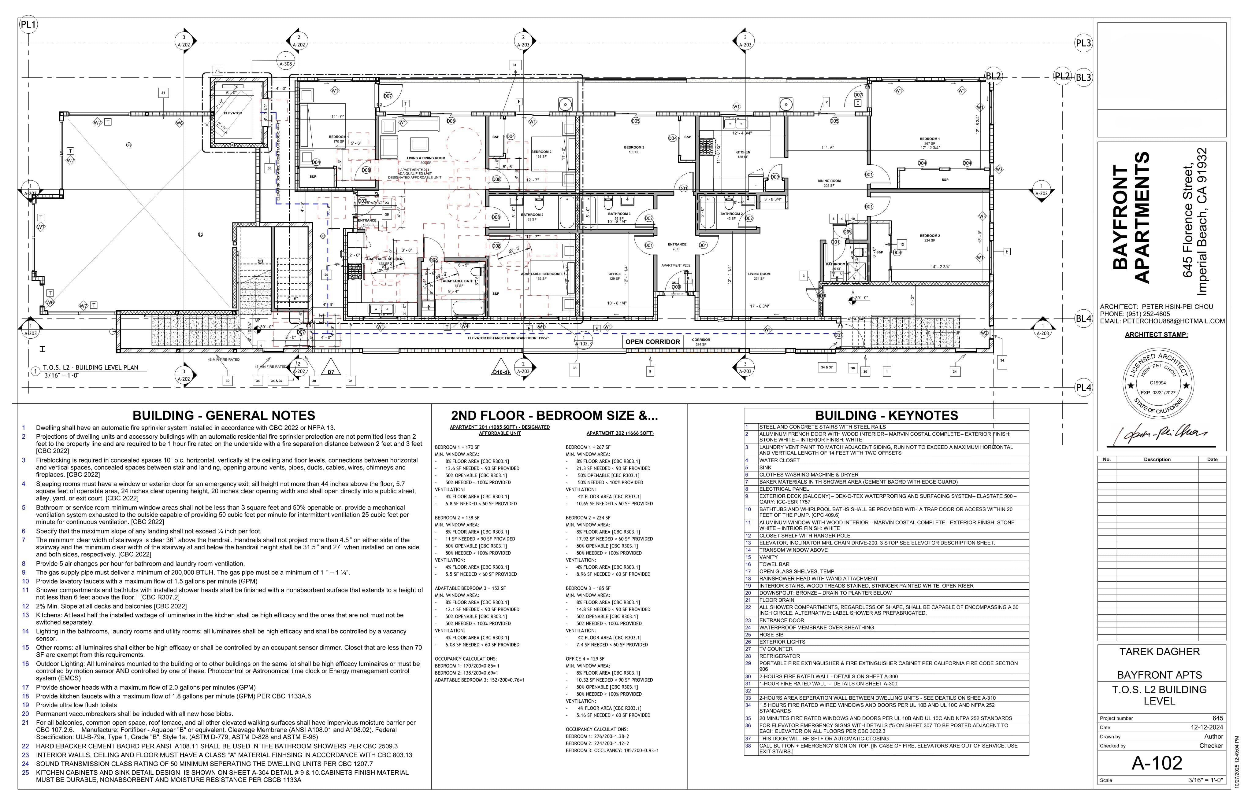
Bay Front Apartments
Home
projects
Bay Front Apartments
Project Name
Bay Front Apartments
Project Type
Architectural Design
Project Address
645 FLORENCE STREET, Imperial Beach, CA 91932
Project Images