x
Home
Services
MEP Design Review & Oversight
Technical Peer Review & Code Alignment for MEP Firms
Full MEP, Fire, Energy & PV Design Services
T24
Architectural Drafting
Pricing
About Us
FAQ
Projects
MEP
Architectural Design
Blogs
Infographics
ARCHITECTS
DEVELOPERS
MEP
Contact Us
Get Quote
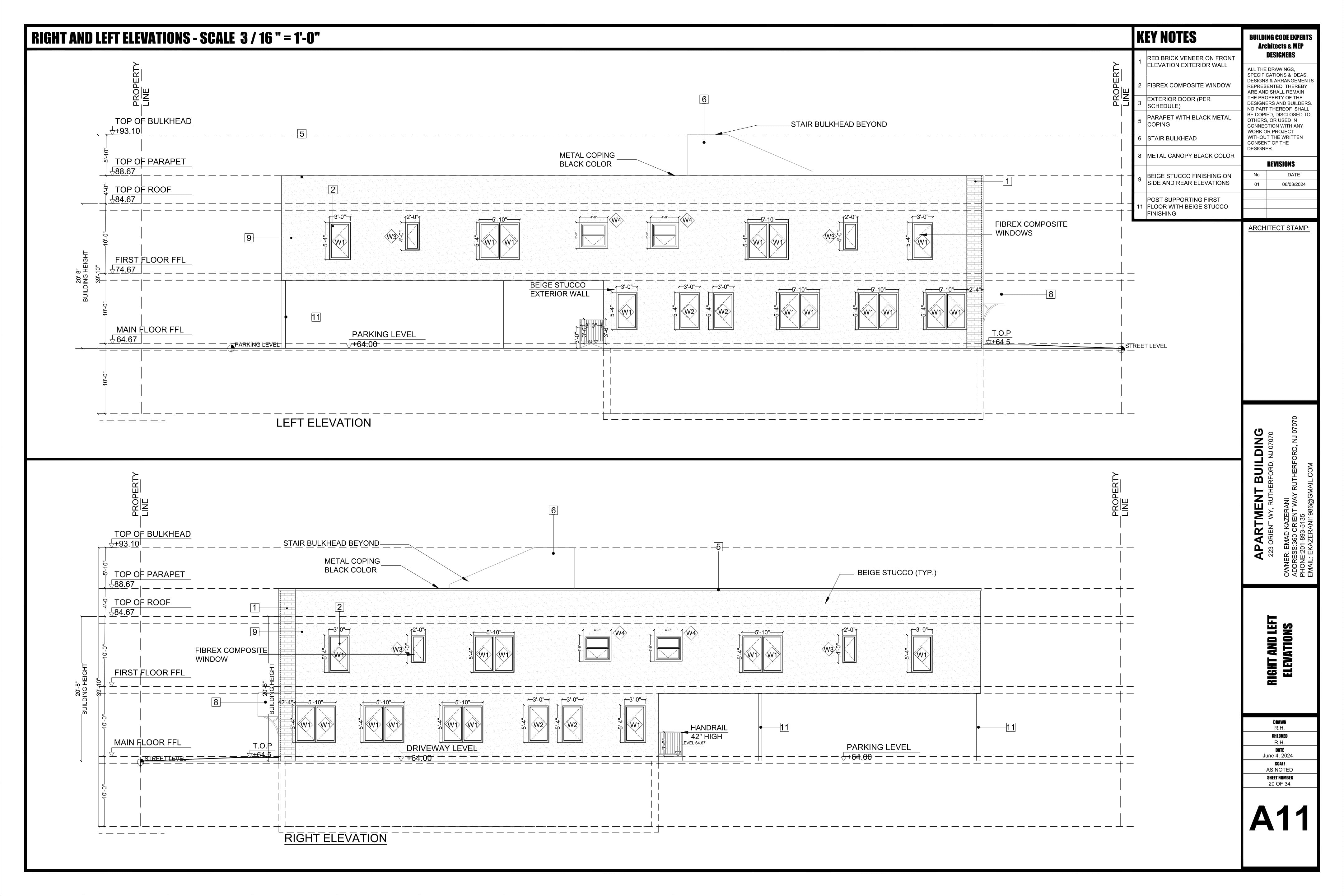
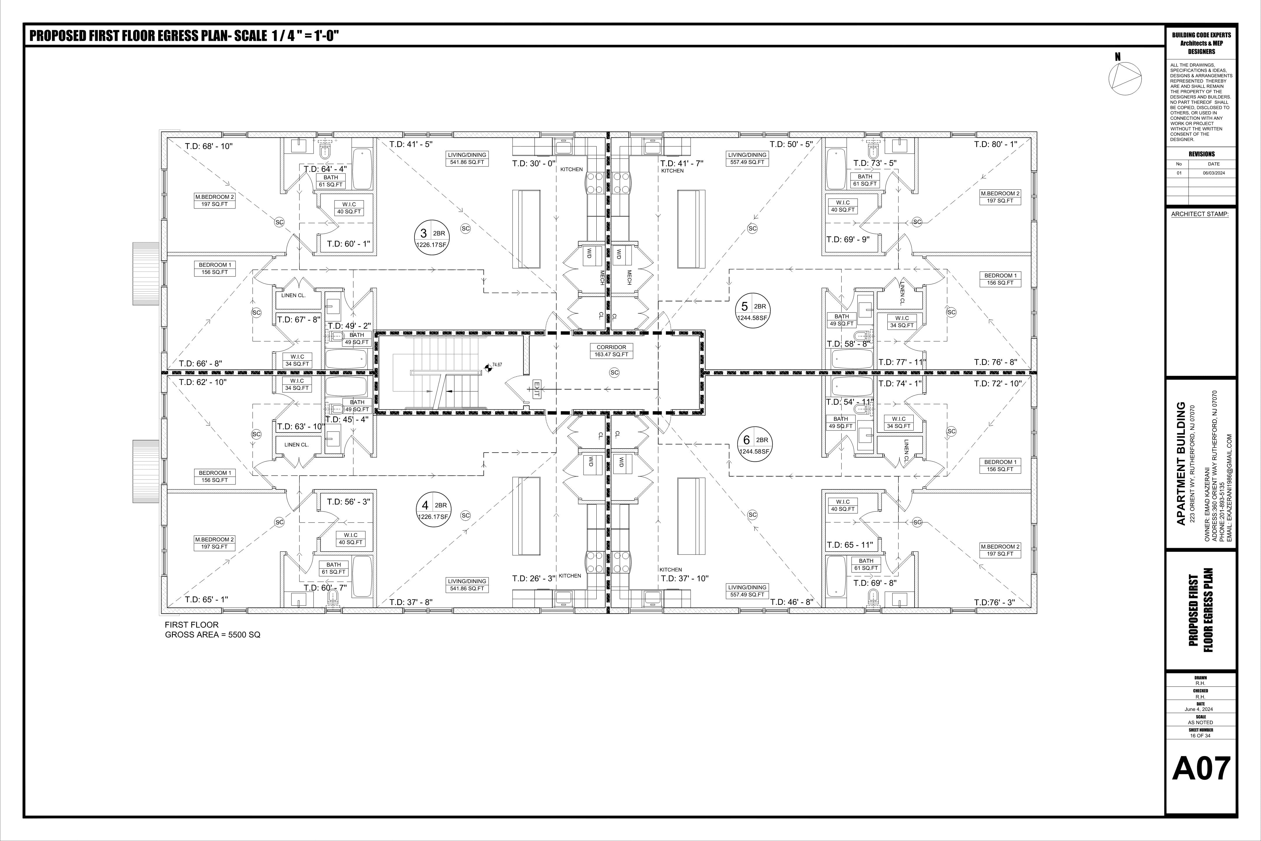
Apartment building orient
Home
projects
Apartment building orient
Project Name
Apartment building orient
Project Type
Architectural Design
Project Address
223 ORIENT WY, RUTHERFORD, NJ 07070
Project Images